Zaradi teh izboljšav so sistemi MRF-6 bolj robustni in vsestranski, kar ustvarja možnosti za izvedbo večjih in bolj zapletenih projektov klimatizacije in hlajenja.
Nova serija MRF ima napredne spiralne kompresorje z dvema dodatnima izpustnima ventiloma. Nova konstrukcija omogoča optimalen nadzor tlaka v kompresorju. Zaradi te izboljšave se je bistveno izboljšala stabilnost delovanja pri visokih in nizkih hitrostih vrtenja. Dosežena je bila tudi nizka raven pulzacij izpustnega tlaka. Izboljšani obratovalni parametri podaljšujejo življenjsko dobo kompresorja in zmanjšujejo porabo energije sistemov kot celote


Učinkovitost vračanja olja
Če kompresor deluje pri nizki frekvenci, se olje vrača le prek kapilare. Če kompresor deluje pri visoki frekvenci, se olje vrača prek kapilare in elektromagnetnega ventila. Tehnologija navzkrižne zamenjave olja omogoča izenačevanje ravni olja v enotah z več kompresorji.

Krmiljenje nivoja olja
Za izenačevanje olja med zunanjimi enotami v kombinaciji več enot se uporablja dodatna cev. Ta tehnologija zagotavlja normalen nivo olja v vseh kompresorjih vseh zunanjih enot.

Motor s koncentriranim navitjem dosega "visoko zmogljivost" in "izboljšano skupno učinkovitost"
Na novo zasnovan visoko zmogljiv procesor omogoča zelo natančno optimizacijo hitrosti kompresorja, kar vodi do uporabe motorja s koncentriranim navijanjem. Naš izdelek dosega visoko izhodno moč in boljše učinke varčevanja z energijo, zlasti pa izboljša oceno sezonske učinkovitosti.

Optimizacija izpusta
Uvedba novega večportnega izpustnega območja v kompresorju predstavlja pomembno izboljšavo pri nadzoru tlaka, ki ponuja boljše ravnovesje in optimizacijo. Ta inovacija je privedla do opaznih izboljšav učinkovitosti, zlasti v srednjefrekvenčnem območju, kar pomeni višje letne izkoristke sistema.


Elektronski ekspanzijski ventili so nameščeni za vse enote ODU in IDU Za zagotovitev učinkovite porazdelitve hladilnega sredstva med enotami ODU in IDU, doseganje enakega učinka in udobja v različnih prostorih.

zasnova sekcijskega toplotnega izmenjevalnika
Sekcijski izmenjevalnik toplote lahko prilagodi svojo zmogljivost glede na trenutno obremenitev. Ta konstrukcija omogoča delovanje pri nizkih obremenitvah (ko npr. delujeta le 1-2 notranji enoti)

Izboljšani toplotni izmenjevalnik
S preureditvijo razporeditve cevovodov od kolektorja do toplotnega izmenjevalnika se je izboljšal pretok distribucije hladilnega sredstva in dosegla se je največja energetska učinkovitost. Izmenjevalnik toplote
ima izboljšano porazdelitev hladilnega sredstva in večjo učinkovitost. Poleg tega se je zaradi povečanja učinkovite površine za prenos toplote v izmenjevalniku toplote povečala energetska učinkovitost.


Reciklažno delovanje
Reciklažno delovanje, daljša življenjska doba kompresorja

Na voljo je več načinov, ki ustrezajo potrebam različnih uporabnikov
Način delovanja: prednostno hlajenje, prednostno ogrevanje, samo hlajenje, samo ogrevanje in prednostno VIP.
Tihi način: na voljo je tihi način s sedmimi nastavitvami (tihi način v nočnem času in tihi način s šestimi nastavitvami).
Način statičnega tlaka : način brez statičnega tlaka, način nizkega statičnega tlaka, način srednjega statičnega tlaka in način visokega statičnega tlaka.

Dvojna zaščita kompresorja
Na podlagi osnovnega senzorja izpusta plina MOV 6 dodajte senzor temperature olja na dnu kompresorja.
Glavne funkcije senzorja temperature olja
Zaščita pred grmenjem
V priključnem bloku je prenapetostni odvodnik, ki preprečuje visoke napetostne konice.

Tehnične značilnosti
T1 3PH/380~400V/50(60)Hz
Enojni modul: 8/10/12/14/16 KM
| Specifikacije | Enote | MOV6-08X1EW1AD | MOV6-10X1EW1AD | MOV6-12X1EW1AD | MOV6-14X1EW1AD | MOV6-16X1EW1AD | ||
| / | / | / | / | / | ||||
| Kombinirani model | / | / | / | / | / | |||
| / | / | / | / | / | ||||
| Razpon zmogljivosti | Hp | 8 | 10 | 12 | 14 | 16 | ||
| Zmogljivost | Hlajenje | kW | 25.2 | 28 | 33.5 | 40 | 45 | |
| ogrevanje | kW | 27.3 | 31.5 | 37.5 | 45 | 50 | ||
| Napajanje | Ph/V/Hz | 3/380-400/50/60 | 3/380-400/50/60 | 3/380-400/50/60 | 3/380-400/50/60 | 3/380-400/50/60 | ||
| Nazivna vhodna moč | kW | 5.79 | 7.00 | 8.59 | 10.26 | 11.90 | ||
| Hlajenje | Največja vhodna moč | kW | 14.02 | 14.38 | 14.73 | 16.91 | 22.68 | |
| Nazivni tok | A | 9.57 | 11.56 | 14.19 | 16.94 | 19.66 | ||
| Električni parametri | Največji tok | A | 23.09 | 23.68 | 25.1 | 28.4 | 36.8 | |
| Nazivna vhodna moč | kW | 6.00 | 7.08 | 8.72 | 10.71 | 12.05 | ||
| Ogrevanje | Največja vhodna moč | kW | 12.72 | 13.23 | 13.68 | 15.60 | 17.20 | |
| Nazivni tok | А | 9.91 | 11.69 | 14.40 | 17.69 | 19.90 | ||
| Največji tok | А | 20.95 | 21.79 | 22.1 | 25.2 | 27.88 | ||
| EER | 4.35 | 4.00 | 3.90 | 3.90 | 3.78 | |||
| COP | 4.55 | 4.45 | 4.30 | 4.20 | 4.15 | |||
| SEER | 7.13 | 6.95 | 6.84 | 6.48 | 5.99 | |||
| SCOP | 5.15 | 5.08 | 4.98 | 4.73 | 4.16 | |||
| Zračni tok hlajenje/ogrevanje | m³/h | 15000/13200 | 15000/13200 | 15000/:13200 | 15000/13200 | 15600/14400 | ||
| Uspešnost | Raven zvočnega tlaka | dB(A) | 57 | 57 | 59 | 59.5 | 61 | |
| Raven zvočne moči | dB(A) | 73 | 73 | 75 | 76 | 77 | ||
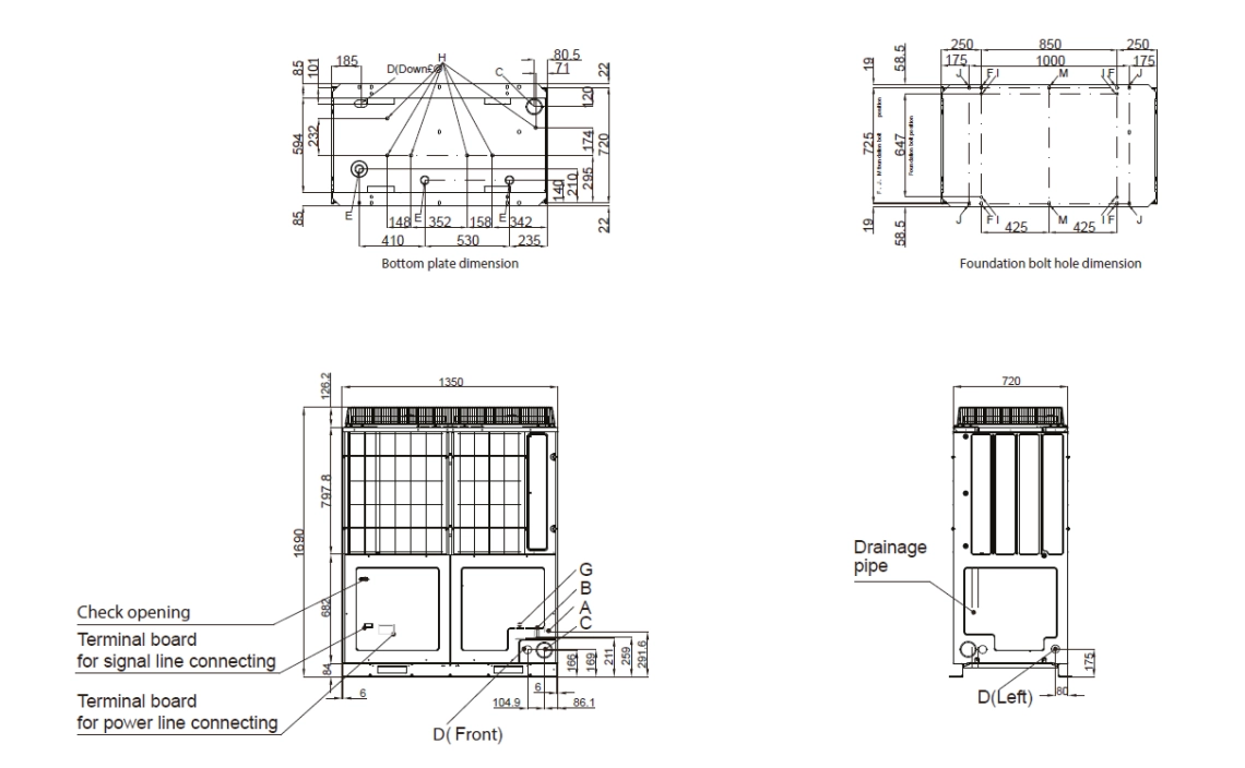
| Zunanje mere (Š/D/V) | mm | 1350×720×1690 | 1350×720×1690 | 1350×720×1690 | 1350×720×1690 | 1350×720×1690 | ||
| Prevozne mere (Š/D/V) | mm | 1450×826×1885 | 1450×826×1885 | 1450×826×1885 | 1450×826×1885 | 1450×826×1885 | ||
| Neto/poštna teža | kg | 269/305 | 269/305 | 269/305 | 275/311 | 323/359 | ||
| Tip kompresorja | DC INV. SCROLL | |||||||
| Blagovna znamka kompresorja | MITSUBISHІ ELECTRIC | |||||||
| Količina kompresorja | 1INV | |||||||
| Vrsta hladilnega sredstva | R410A | |||||||
| Polnjenje hladilnega sredstva | kg | 9.7 | 9.7 | 9.7 | 10 | 10 | ||
| Cev za hladilno tekočino | mm | 9.52 | 9.52 | 12.7 | 12.7 | 12.7 | ||
| Namestitev | Cev za hladilni plin | mm | 19.05 | 22.22 | 25.4 | 25.4 | 28.58 | |
| Cev za izravnavo olja | mm | 9.52 | 9.52 | 9.52 | 9.52 | 9.52 | ||
| Največja skupna dolžina cevi | m | 1000 | 1000 | 1000 | 1000 | 1000 | ||
| Največja dolžina cevi (enakovredno/ dejansko) |
m | 190/165 | 190/165 | 190/165 | 190/165 | 190/165 | ||
| Največji padec med I.U.&O.U. (O.U navzgor/navzdol)1 |
m | 90/110 | 90/110 | 90/110 | 90/110 | 90/110 | ||
| Standardni padec med I.U.&O.U2 | m | 50/40 | 50/40 | 50/40 | 50/40 | 50/40 | ||
| Največji padec med I.U3 | m | 30 | 30 | 30 | 30 | 30 | ||
| Standardni padec med I.U4 | m | 18 | 18 | 18 | 18 | 18 | ||
| Zunanji statični tlak | Pa | 82 | 82 | 82 | 82 | 82 | ||
| Razmerje povezav | Priključno razmerje notranje enote | % | 50-160 | 50-160 | 50-160 | 50-160 | 50-160 | |
| Največje število notranjih enot | 18 | 20 | 24 | 29 | 33 | |||
| Delovna temperatura. | Hlajenje (DB) | °C | (-5...50) | (-5...50) | (-5...50) | (-5...50) | (-5...50) | |
| Ogrevanje(WB) | °C | (-23...21) | (-23...21) | (-23...21) | (-23...21) | (-23...21) | ||
| Specifikacije | Enote | MOV6-18X1EW1AD | MOV6-20X1EW1AD | MOV6-22X1EW1AD | MOV6-24X1EW1AD | ||
| / | / | / | / | ||||
| Kombinirani model | / | / | / | / | |||
| / | / | / | / | ||||
| Razpon zmogljivosti | Hp | 18 | 20 | 22 | 24 | ||
| Zmogljivost | Hlajenje | kW | 50.4 | 56 | 61.5 | 68 | |
| ogrevanje | kW | 56.5 | 63 | 69 | 73 | ||
| Napajanje | Ph/V/Hz | 3/380-400/50/60 | 3/380-400/50/60 | 3/380-400/50/60 | 3/380-400/50/60 | ||
| Nazivna vhodna moč | kW | 13.62 | 15.56 | 17.57 | 19.71 | ||
| Hlajenje | Največja vhodna moč | kW | 22.10 | 25.19 | 30.56 | 37.47 | |
| Nazivni tok | A | 22.50 | 25.69 | 29.02 | 32.55 | ||
| Električni parametri | Največji tok | A | 36.15 | 41.1 | 49.65 | 60.45 | |
| Nazivna vhodna moč | kW | 13.95 | 15.95 | 18.16 | 19.47 | ||
| Ogrevanje | Največja vhodna moč | kW | 22.68 | 25.19 | 27.72 | 28.62 | |
| Nazivni tok | А | 23.04 | 26.34 | 29.99 | 32.15 | ||
| Največji tok | А | 37.8 | 42 | 46.05 | 47.4 | ||
| EER | 3.70 | 3.60 | 3.50 | 3.45 | |||
| COP | 4.05 | 3.95 | 3.80 | 3.75 | |||
| SEER | 6.13 | 6.00 | 5.88 | 5.69 | |||
| SCOP | 4.27 | 4.19 | 3.99 | 3.87 | |||
| Pretok zraka | m³/h | 16200/15000 | 16200/15000 | 16200/15000 | 16200/15000 | ||
| Izvedba | Raven zvočnega tlaka | dB(A) | 62 | 62 | 62 | 63 | |
| Raven zvočne moči | dB(A) | 79 | 79 | 79 | 80 | ||
| Zunanje mere (Š/D/V) | mm | 1350×720×2048 | 1350×720×2048 | 1350×720×2048 | 1350×720×2048 | ||
| Prevozne mere (Š/D/V) | mm | 1450×826×2225 | 1450×826×2225 | 1450×826×2225 | 1450×826×2225 | ||
| Neto/poštna teža | kg | 354/400 | 354/400 | 380/426 | 380/426 | ||
| Vrsta kompresorja | DC INV. SCROLL | ||||||
| Blagovna znamka kompresorja | MITSUBISHІ ELECTRIC | ||||||
| Količina kompresorja | 2INV | ||||||
| Vrsta hladilnega sredstva | R410A | ||||||
| Polnjenje hladilnega sredstva | kg | 10 | 10 | 10 | 10 | ||
| Cev za hladilno tekočino | mm | 15.88 | 15.88 | 15.88 | 15.88 | ||
| Namestitev | Cev za hladilni plin | mm | 28.58 | 28.58 | 28.58 | 28.58 | |
| Cev za izravnavo olja | mm | 9.52 | 9.52 | 9.52 | 9.52 | ||
| Največja skupna dolžina cevi | m | 1000 | 1000 | 1000 | 1000 | ||
| Največja dolžina cevi (enakovredno/ dejansko) |
m | 190/165 | 190/165 | 190/165 | 190/165 | ||
| Največji padec med I.U.&O.U. (O.U navzgor/navzdol)1 |
m | 90/110 | 90/110 | 90/110 | 90/110 | ||
| Standardni padec med I.U.&O.U2 | m | 50/40 | 50/40 | 50/40 | 50/40 | ||
| Največji padec med I.U3 | m | 30 | 30 | 30 | 30 | ||
| Standardni padec med I.U4 | m | 18 | 18 | 18 | 18 | ||
| Zunanji statični tlak | Pa | 82 | 82 | 82 | 82 | ||
| Razmerje povezave | Priključno razmerje notranje enote | % | 50-160 | 50-160 | 50-160 | 50-160 | |
| Največje število notranjih enot | 37 | 41 | 45 | 49 | |||
| Delovna temperatura. | Hlajenje (DB) | °C | (-5...50) | (-5...50) | (-5...50) | (-5...50) | |
| Ogrevanje(WB) | °C | (-23...21) | (-23...21) | (-23...21) | (-23...21) | ||
Kombinirani modul: 26-48HP
(2 modula)
T1 3PH/380~400V/50(60)Hz
| Specifikacije | Enote | MOV6-28X1EW1AD | MOV6-30X1EW1AD | MOV6-32X1EW1AD | |||
| MOV6-12X1EW1AD | MOV6-14X1EW1AD | MOV6-14X1EW1AD | MOV6-14X1EW1AD | ||||
| Kombinirani model | MOV6-14X1EW1AD | MOV6-14X1EW1AD | MOV6-16X1EW1AD | MOV6-18X1EW1AD | |||
| / | / | / | / | ||||
| Razpon zmogljivosti | Hp | 26 | 28 | 30 | 32 | ||
| Zmogljivost | Hlajenje | kW | 73.5 | 80 | 85 | 90.4 | |
| ogrevanje | kW | 82.5 | 90 | 95 | 101.5 | ||
| Napajanje | Ph/V/Hz | 3/380-400/50/60 | 3/380-400/50/60 | 3/380-400/50/60 | 3/380-400/50/60 | ||
| Nazivna vhodna moč | kW | 18.85 | 20.51 | 22.16 | 23.88 | ||
| Hlajenje | Največja vhodna moč | kW | 31.64 | 33.81 | 39.59 | 39.00 | |
| Nazivni tok | A | 31.12 | 33.88 | 36.60 | 39.43 | ||
| Električni parametri | Največji tok | A | 53.5 | 56.8 | 65.2 | 64.55 | |
| Nazivna vhodna moč | kW | 19.44 | 21.43 | 22.76 | 24.66 | ||
| Ogrevanje | Največja vhodna moč | kW | 29.28 | 31.20 | 32.80 | 38.28 | |
| Nazivni tok | А | 32.10 | 35.39 | 37.59 | 40.73 | ||
| Največji tok | А | 47.3 | 50.4 | 53.08 | 63 | ||
| EER | 3.90 | 3.90 | 3.84 | 3.79 | |||
| COP | 4.24 | 4.20 | 4.17 | 4.12 | |||
| SEER | 6.63 | 6.48 | 6.21 | 6.29 | |||
| SCOP | 4.84 | 4.73 | 4.41 | 4.46 | |||
| Pretok zraka | m³/h | 30000/26400 | 30000/26400 | 30600/27600 | 31200/28200 | ||
| Izvedba | Raven zvočnega tlaka | dB(A) | 62 | 62.5 | 63 | 64 | |
| Raven zvočne moči | dB(A) | 79 | 80 | 80 | 81 | ||
| Zunanje mere (Š/D/H) | mm | 1350×720×1690+ 1350×720×1690 |
(1350×720×1690)*2 | 1350×720×1690+ 1350×720×1690 |
1350×720×1690+ 1350×720×2048 |
||
| Prevozne mere (Š/D/V) | mm | 1450×826×1885+ 1450×826×1885 |
(1450×826×1885)*2 | 1450×826×1885+ 1450×826×1885 |
1450×826×1885+ 1450×826×2225 |
||
| Neto/poštna teža | kg | 269/305+275/311 | 275/311+275/311 | 275/311+323/359 | 275/311+354/400 | ||
| Tip kompresorja | DC INV. SCROLL | ||||||
| Blagovna znamka kompresorja | MITSUBISHІ ELECTRIC | ||||||
| Količina kompresorja | 1INV+1INV | 1INV*2 | 1INV+2INV | 1INV+2INV | |||
| Vrsta hladilnega sredstva | R410A | ||||||
| Polnjenje hladilnega sredstva | kg | 19.7 | 10 | 10 | 10 | ||
| Cev za hladilno tekočino | mm | 19.05 | 19.05 | 19.05 | 19.05 | ||
| Namestitev | Cev za hladilni plin | mm | 31.8 | 31.8 | 31.8 | 31.8 | |
| Cev za izravnavo olja | mm | 9.52 | 9.52 | 9.52 | 9.52 | ||
| Največja skupna dolžina cevi | m | 1000 | 1000 | 1000 | 1000 | ||
| Največja dolžina cevi (enakovredno/ dejansko) |
m | 190/165 | 190/165 | 190/165 | 190/165 | ||
| Največji padec med I.U.&O.U. (O.U navzgor/navzdol)1 |
m | 90/110 | 90/110 | 90/110 | 90/110 | ||
| Standardni padec med I.U.&O.U2 | m | 50/40 | 50/40 | 50/40 | 50/40 | ||
| Največji padec med I.U3 | m | 30 | 30 | 30 | 30 | ||
| Standardni padec med I.U4 | m | 18 | 18 | 18 | 18 | ||
| Zunanji statični tlak | Pa | 82 | 82 | 82 | 82 | ||
| Razmerje povezave | Priključno razmerje notranje enote | % | 50-160 | 50-160 | 50-160 | 50-160 | |
| Največje število notranjih enot | 53 | 58 | 62 | 64 | |||
| Delovna temperatura. | Hlajenje (DB) | °C | (-5...50) | (-5...50) | (-5...50) | (-5...50) | |
| Ogrevanje(WB) | °C | (-23...21) | (-23...21) | (-23...21) | (-23...21) | ||
| Specifikacije | Enote | MOV6-34X1EW1AD | MOV6-36X1EW1AD | MOV6-38X1EW1AD | MOV6-40X1EW1AD | ||
| MOV6-16X1EW1AD | MOV6-16X1EW1AD | MOV6-18X1EW1AD | MOV6-20X1EW1AD | ||||
| Kombinirani model | MOV6-18X1EW1AD | MOV6-20X1EW1AD | MOV6-20X1EW1AD | MOV6-20X1EW1AD | |||
| / | / | / | / | ||||
| Razpon zmogljivosti | Hp | 34 | 36 | 38 | 40 | ||
| Zmogljivost | Hlajenje | kW | 95.4 | 101 | 106.4 | 112 | |
| ogrevanje | kW | 106.5 | 113 | 119.5 | 126 | ||
| Napajanje | Ph/V/Hz | 3/380-400/50/60 | 3/380-400/50/60 | 3/380-400/50/60 | 3/380-400/50/60 | ||
| Nazivna vhodna moč | kW | 25.53 | 27.46 | 29.18 | 31.11 | ||
| Hlajenje | Največja vhodna moč | kW | 44.78 | 47.87 | 47.28 | 50.37 | |
| Nazivni tok | A | 42.16 | 45.35 | 48.19 | 51.38 | ||
| Električni parametri | Največji tok | A | 72.95 | 77.9 | 77.25 | 82.2 | |
| Nazivna vhodna moč | kW | 26.00 | 28.00 | 29.90 | 31.90 | ||
| Ogrevanje | Največja vhodna moč | kW | 39.88 | 42.39 | 47.87 | 50.37 | |
| Nazivni tok | А | 42.94 | 46.24 | 49.38 | 52.68 | ||
| Največji tok | А | 65.68 | 69.88 | 79.8 | 84 | ||
| EER | 3.74 | 3.68 | 3.65 | 3.60 | |||
| COP | 4.10 | 4.04 | 4.00 | 3.95 | |||
| SEER | 6.07 | 6.01 | 6.08 | 6.00 | |||
| SCOP | 4.21 | 4.17 | 4.23 | 4.19 | |||
| Pretok zraka | m³/h | 31800/29400 | 31800/29400 | 32400/30000 | 32400/30000 | ||
| Izvedba | Raven zvočnega tlaka (H) | dB(A) | 64.5 | 64.5 | 65 | 65 | |
| Raven zvočne moči (H) | dB(A) | 82 | 82 | 83 | 83 | ||
| Zunanje mere (Š/D/V) | mm | 1350×720×1690+ 1350×720×2048 |
1350×720×1690+ 1350×720×2048 |
1350×720×2048+ 1350×720×2048 |
(1350×720×2048)*2 | ||
| Prevozne mere (Š/D/V) | mm | 1450×826×1885+ 1450×826×2225 |
1450×826×1885+ 1450×826×2225 |
1450×826×2225+ 1450×826×2225 |
(1450×826×2225)*2 | ||
| Neto/poštna teža | kg | 323/359+354/400 | 323/359+354/400 | 354/400+354/400 | 354/400+354/400 | ||
| Tip kompresorja | DC INV. SCROLL | ||||||
| Blagovna znamka kompresorja | MITSUBISHІ ELECTRIC | ||||||
| Količina kompresorja | 2INV+2INV | 2INV+2INV | 2INV+2INV | 2INV*2 | |||
| Vrsta hladilnega sredstva | R410A | ||||||
| Polnjenje hladilnega sredstva | kg | 20 | 20 | 20 | 20 | ||
| Cev za hladilno tekočino | mm | 19.05 | 19.05 | 19.05 | 19.05 | ||
| Namestitev | Cev za hladilni plin | mm | 38.1 | 38.1 | 38.1 | 38.1 | |
| Cev za izravnavo olja | mm | 9.52 | 9.52 | 9.52 | 9.52 | ||
| Največja skupna dolžina cevi | m | 1000 | 1000 | 1000 | 1000 | ||
| Največja dolžina cevi (enakovredno/ dejansko) |
m | 190/165 | 190/165 | 190/165 | 190/165 | ||
| Največji padec med I.U.&O.U. (O.U navzgor/navzdol)1 |
m | 90/110 | 90/110 | 90/110 | 90/110 | ||
| Standardni padec med I.U.&O.U2 | m | 50/40 | 50/40 | 50/40 | 50/40 | ||
| Največji padec med I.U3 | m | 30 | 30 | 30 | 30 | ||
| Standardni padec med I.U4 | m | 18 | 18 | 18 | 18 | ||
| Zunanji statični tlak | Pa | 82 | 82 | 82 | 82 | ||
| Razmerje povezave | Priključno razmerje notranje enote | % | 50-160 | 50-160 | 50-160 | 50-160 | |
| Največje število notranjih enot | 37 | 41 | 45 | 49 | |||
| Delovna temperatura. | Hlajenje (DB) | °C | (-5...50) | (-5...50) | (-5...50) | (-5...50) | |
| Ogrevanje(WB) | °C | (-23...21) | (-23...21) | (-23...21) | (-23...21) | ||
| Specifikacije | Enote | MOV6-42X1EW1AD | MOV6-44X1EW1AD | MOV6-46X1EW1AD | MOV6-48X1EW1AD | ||
| MOV6-20X1EW1AD | MOV6-20X1EW1AD | MOV6-22X1EW1AD | MOV6-24X1EW1AD | ||||
| Kombinirani model | MOV6-22X1EW1AD | MOV6-24X1EW1AD | MOV6-24X1EW1AD | MOV6-24X1EW1AD | |||
| / | / | / | / | ||||
| Razpon zmogljivosti | Hp | 42 | 44 | 46 | 48 | ||
| Zmogljivost | Hlajenje | kW | 117.5 | 124 | 129.5 | 136 | |
| ogrevanje | kW | 132 | 136 | 142 | 146 | ||
| Napajanje | Ph/V/Hz | 3/380-400/50/60 | 3/380-400/50/60 | 3/380-400/50/60 | 3/380-400/50/60 | ||
| Nazivna vhodna moč | kW | 33.13 | 35.27 | 37.28 | 39.42 | ||
| Hlajenje | Največja vhodna moč | kW | 55.75 | 62.66 | 68.03 | 74.94 | |
| Nazivni tok | A | 54.71 | 58.24 | 61.57 | 65.10 | ||
| Električni parametri | Največji tok | A | 90.75 | 101.55 | 110.1 | 120.9 | |
| Nazivna vhodna moč | kW | 34.11 | 35.42 | 37.62 | 38.93 | ||
| Ogrevanje | Največja vhodna moč | kW | 52.91 | 53.81 | 56.34 | 57.24 | |
| Nazivni tok | А | 56.33 | 58.49 | 62.14 | 64.30 | ||
| Največji tok | А | 88.05 | 89.4 | 93.45 | 94.8 | ||
| EER | 3.55 | 3.52 | 3.47 | 3.45 | |||
| COP | 3.87 | 3.84 | 3.77 | 3.75 | |||
| SEER | 5.96 | 5.84 | 5.80 | 5.69 | |||
| SCOP | 4.08 | 4.01 | 3.93 | 3.87 | |||
| Pretok zraka | m³/h | 32400/30000 | 32400/30000 | 32400/30000 | 32400/30000 | ||
| Izvedba | Raven zvočnega tlaka | dB(A) | 65 | 65.5 | 65.5 | 66 | |
| Raven zvočne moči | dB(A) | 83 | 83 | 83 | 84 | ||
| Zunanje mere (Š/D/V) | mm | 1350×720×2048+ 1350×720×2048 |
1350×720×2048+ 1350×720×2048 |
1350×720×2048+ 1350×720×2048 |
(1350×720×2048)*2 | ||
| Prevozne mere (Š/D/V) | mm | 1450×826×2225+ 1450×826×2225 |
1450×826×2225+ 1450×826×2225 |
1450×826×2225+ 1450×826×2225 |
(1450×826×2225)*2 | ||
| Neto/poštna teža | kg | 354/400+380/426 | 354/400+380/426 | 380/426+380/426 | 380/426+380/426 | ||
| Vrsta kompresorja | DC INV. SCROLL | ||||||
| Blagovna znamka kompresorja | MITSUBISHІ ELECTRIC | ||||||
| Količina kompresorja | 2INV+2INV | 2INV+2INV | 2INV+2INV | 2INV*2 | |||
| Vrsta hladilnega sredstva | R410A | ||||||
| Polnjenje hladilnega sredstva | kg | 20 | 20 | 20 | 20 | ||
| Cev za hladilno tekočino | mm | 19.05 | 19.05 | 19.05 | 19.05 | ||
| Namestitev | Cev za hladilni plin | mm | 38.1 | 38.1 | 38.1 | 38.1 | |
| Cev za izravnavo olja | mm | 9.52 | 9.52 | 9.52 | 9.52 | ||
| Največja skupna dolžina cevi | m | 1000 | 1000 | 1000 | 1000 | ||
| Največja dolžina cevi (enakovredno/ dejansko) |
m | 190/165 | 190/165 | 190/165 | 190/165 | ||
| Največji padec med I.U.&O.U. (O.U navzgor/navzdol)1 |
m | 90/110 | 90/110 | 90/110 | 90/110 | ||
| Standardni padec med I.U.&O.U2 | m | 50/40 | 50/40 | 50/40 | 50/40 | ||
| Največji padec med I.U3 | m | 30 | 30 | 30 | 30 | ||
| Standardni padec med I.U4 | m | 18 | 18 | 18 | 18 | ||
| Zunanji statični tlak | Pa | 82 | 82 | 82 | 82 | ||
| Razmerje povezave | Priključno razmerje notranje enote | % | 50-160 | 50-160 | 50-160 | 50-160 | |
| Največje število notranjih enot | 64 | 64 | 64 | 64 | |||
| Delovna temperatura. | Hlajenje (DB) | °C | (-5...50) | (-5...50) | (-5...50) | (-5...50) | |
| Ogrevanje(WB) | °C | (-23...21) | (-23...21) | (-23...21) | (-23...21) | ||
Kombinirani modul: 50-72 KM
(3 moduli)
T1 3PH/380~400V/50(60)Hz
| Specifikacije | Enote | MOV6-50X1EW1AD | MOV6-52X1EW1AD | MOV6-54X1EW1AD | MOV6-56X1EW1AD | ||
| MOV6-14X1EW1AD | MOV6-16X1EW1AD | MOV6-16X1EW1AD | MOV6-16X1EW1AD | ||||
| Kombinirani model | MOV6-18X1EW1AD | MOV6-16X1EW1AD | MOV6-18X1EW1AD | MOV6-20X1EW1AD | |||
| MOV6-18X1EW1AD | MOV6-20X1EW1AD | MOV6-20X1EW1AD | MOV6-20X1EW1AD | ||||
| Razpon zmogljivosti | Hp | 50 | 52 | 54 | 56 | ||
| Zmogljivost | Hlajenje | kW | 140.8 | 146 | 151.4 | 157 | |
| ogrevanje | kW | 158 | 163 | 169.5 | 176 | ||
| Napajanje | Ph/V/Hz | 3/380-400/50/60 | 3/380-400/50/60 | 3/380-400/50/60 | 3/380-400/50/60 | ||
| Nazivna vhodna moč | kW | 37.50 | 39.37 | 41.08 | 43.02 | ||
| Hlajenje | Največja vhodna moč | kW | 61.10 | 70.55 | 69.96 | 73.05 | |
| Nazivni tok | A | 61.93 | 65.01 | 67.85 | 71.04 | ||
| Električni parametri | Največji tok | A | 100.7 | 114.7 | 114.05 | 119 | |
| Nazivna vhodna moč | kW | 38.62 | 40.05 | 41.95 | 43.95 | ||
| Ogrevanje | Največja vhodna moč | kW | 60.96 | 59.59 | 65.07 | 67.57 | |
| Nazivni tok | А | 63.77 | 66.14 | 69.28 | 72.58 | ||
| Največji tok | А | 100.8 | 97.76 | 107.68 | 111.88 | ||
| EER | 3.75 | 3.71 | 3.69 | 3.65 | |||
| COP | 4.09 | 4.07 | 4.04 | 4.00 | |||
| SEER | 6.36 | 6.12 | 6.05 | 6.01 | |||
| SCOP | 4.39 | 4.17 | 4.20 | 4.18 | |||
| Pretok zraka | m³/h | 47400/43800 | 47400/43800 | 48000/44400 | 48000/44400 | ||
| Izvedba | Raven zvočnega tlaka | dB(A) | 66 | 66 | 66.5 | 66.5 | |
| Raven zvočne moči | dB(A) | 84 | 84 | 85 | 85 | ||
| Zunanje mere (Š/D/V) | mm | 1350×720×1690+ (1350×720×2048)*2 |
(1350×720×1690)*2+ 1350×720×2048 |
1350×720×1690+1350×720× 2048+1350×720×2048 |
1350×720×1690+ (1350×720×2048)*2 |
||
| Prevozne mere (Š/D/V) | mm | 1450×826×1885+ (1450×826×2225)*2 |
1450×826×1885)*2+ 1450×826×2225 |
1450×826×1885+1450×826× 2225+1450×826×2225 |
1450×826×1885+ (1450×826×2225)*2 |
||
| Neto/poštna teža | kg | 275/311+354/400+354/400 | 323/359+354/400+354/400 | 323/359+354/400+354/400 | 323/359+354/400+354/400 | ||
| Vrsta kompresorja | DC INV. SCROLL | ||||||
| Blagovna znamka kompresorja | MITSUBISHІ ELECTRIC | ||||||
| Količina kompresorja | 1INV+2INV*2 | 2INV*2+2INV | 2INV+2INV+2INV+2INV | 2INV+2INV*2 | |||
| Vrsta hladilnega sredstva | R410A | ||||||
| Polnjenje hladilnega sredstva | kg | 30 | 30 | 30 | 30 | ||
| Cev za hladilno tekočino | mm | 19.05 | 19.05 | 19.05 | 19.05 | ||
| Namestitev | Cev za hladilni plin | mm | 38.1 | 38.1 | 38.1 | 41.3 | |
| Cev za izravnavo olja | mm | 9.52 | 9.52 | 9.52 | 9.52 | ||
| Največja skupna dolžina cevi | m | 1000 | 1000 | 1000 | 1000 | ||
| Največja dolžina cevi (enakovredno/ dejansko) |
m | 190/165 | 190/165 | 190/165 | 190/165 | ||
| Največji padec med I.U.&O.U. (O.U navzgor/navzdol)1 |
m | 90/110 | 90/110 | 90/110 | 90/110 | ||
| Standardni padec med I.U.&O.U2 | m | 50/40 | 50/40 | 50/40 | 50/40 | ||
| Največji padec med I.U3 | m | 30 | 30 | 30 | 30 | ||
| Standardni padec med I.U4 | m | 18 | 18 | 18 | 18 | ||
| Zunanji statični tlak | Pa | 82 | 82 | 82 | 82 | ||
| Razmerje povezave | Priključno razmerje notranje enote | % | 50-160 | 50-160 | 50-160 | 50-160 | |
| Največje število notranjih enot | 64 | 64 | 64 | 64 | |||
| Delovna temperatura. | Hlajenje (DB) | °C | (-5...50) | (-5...50) | (-5..50) | (-5...50) | |
| Ogrevanje(WB) | °C | (-23...21) | (-23...21) | (-23...21) | (-23..21) | ||
| Specifikacije | Enote | MOV6-58X1EW1AD | MOV6-60X1EW1AD | MOV6-62X1EW1AD | MOV6-64X1EW1AD | ||
| MOV6-18X1EW1AD | MOV6-20X1EW1AD | MOV6-20X1EW1AD | MOV6-20X1EW1AD | ||||
| Kombinirani model | MOV6-20X1EW1AD | MOV6-20X1EW1AD | MOV6-20X1EW1AD | MOV6-20X1EW1AD | |||
| MOV6-20X1EW1AD | MOV6-20X1EW1AD | MOV6-22X1EW1AD | MOV6-24X1EW1AD | ||||
| Razpon zmogljivosti | Hp | 58 | 60 | 62 | 64 | ||
| Zmogljivost | Hlajenje | kW | 162.4 | 168 | 173.5 | 180 | |
| ogrevanje | kW | 182.5 | 189 | 195 | 199 | ||
| Napajanje | Ph/V/Hz | 3/380-400/50/60 | 3/380-400/50/60 | 3/380-400/50/60 | 3/380-400/50/60 | ||
| Nazivna vhodna moč | kW | 44.73 | 46.67 | 48.68 | 50.82 | ||
| Hlajenje | Največja vhodna moč | kW | 72.47 | 75.56 | 80.93 | 87.84 | |
| Nazivni tok | A | 73.88 | 77.07 | 80.40 | 83.93 | ||
| Električni parametri | Največji tok | A | 118.35 | 123.3 | 131.85 | 142.65 | |
| Nazivna vhodna moč | kW | 45.85 | 47.85 | 50.06 | 51.37 | ||
| Ogrevanje | Največja vhodna moč | kW | 73.05 | 75.56 | 78.09 | 78.99 | |
| Nazivni tok | А | 75.72 | 79.02 | 82.67 | 84.83 | ||
| Največji tok | А | 121.8 | 126 | 130.05 | 131.4 | ||
| EER | 3.63 | 3.60 | 3.56 | 3.54 | |||
| COP | 3.98 | 3.95 | 3.90 | 3.87 | |||
| SEER | 6.06 | 6.00 | 5.98 | 5.90 | |||
| SCOP | 4.27 | 4.19 | 4.12 | 4.07 | |||
| Pretok zraka | m³/h | 48600/45000 | 48600/45000 | 48600/45000 | 48600/45000 | ||
| Izvedba | Raven zvočnega tlaka | dB(A) | 67 | 67 | 67 | 67 | |
| Raven zvočne moči | dB(A) | 85 | 85 | 85 | 85 | ||
| Zunanje mere (Š/D/H) | mm | 1350×720×2048+ (1350×720×2048)*2 |
(1350×720×2048)*3 | (1350×720×2048)*2+ 1350×720×2048 |
(1350×720×2048)*2+ 1350×720×2048 |
||
| Prevozne mere (Š/D/V) | mm | 1450×826×2225+ (1450×826×2225)*2 |
(1450×826×2225)*3 | (1450×826×2225)*2+ (450×826×2225 |
(1450×826×2225)*2+ 1450×826×2225 |
||
| Neto/poštna teža | kg | 354/400+354/400+380/426 | 354/400+354/400+380/426 | 354/400+354/400+380/426 | 354/400+354/400+380/426 | ||
| Vrsta kompresorja | DC INV. SCROLL | ||||||
| Blagovna znamka kompresorja | MITSUBISHІ ELECTRIC | ||||||
| Količina kompresorja | 2INV+2INV*2 | 2INV*3 | 2INV*2+2INV | 2INV*2+2INV | |||
| Vrsta hladilnega sredstva | R410A | ||||||
| Polnjenje hladilnega sredstva | kg | 30 | 30 | 30 | 30 | ||
| Cev za hladilno tekočino | mm | 19.05 | 19.05 | 19.05 | 19.05 | ||
| Namestitev | Cev za hladilni plin | mm | 41.3 | 41.3 | 41.3 | 41.3 | |
| Cev za izravnavo olja | mm | 9.52 | 9.52 | 9.52 | 9.52 | ||
| Največja skupna dolžina cevi | m | 1000 | 1000 | 1000 | 1000 | ||
| Največja dolžina cevi (enakovredno/ dejansko) |
m | 190/165 | 190/165 | 190/165 | 190/165 | ||
| Največji padec med I.U.&O.U. (O.U navzgor/navzdol)1 |
m | 90/110 | 90/110 | 90/110 | 90/110 | ||
| Standardni padec med I.U.&O.U2 | m | 50/40 | 50/40 | 50/40 | 50/40 | ||
| Največji padec med I.U3 | m | 30 | 30 | 30 | 30 | ||
| Standardni padec med I.U4 | m | 18 | 18 | 18 | 18 | ||
| Zunanji statični tlak | Pa | 82 | 82 | 82 | 82 | ||
| Razmerje povezave | Priključno razmerje notranje enote | % | 50-160 | 50-160 | 50-160 | 50-160 | |
| Največje število notranjih enot | 64 | 64 | 64 | 64 | |||
| Delovna temperatura. | Hlajenje (DB) | °C | (-5...50) | (-5...50) | (-5...50) | (-5...50) | |
| Ogrevanje(WB) | °C | (-23...21) | (-23...21) | (-23...21) | (-23...21) | ||
| Specifikacije | Enote | MOV6-66X1EW1AD | MOV6-68X1EW1AD | MOV6-70X1EW1AD | MOV6-72X1EW1AD | ||
| MOV6-20X1EW1AD | MOV6-20X1EW1AD | MOV6-22X1EW1AD | MOV6-24X1EW1AD | ||||
| Kombinirani model | MOV6-22X1EW1AD | MOV6-24X1EW1AD | MOV6-24X1EW1AD | MOV6-24X1EW1AD | |||
| MOV6-24X1EW1AD | MOV6-24X1EW1AD | MOV6-24X1EW1AD | MOV6-24X1EW1AD | ||||
| Razpon zmogljivosti | Hp | 66 | 68 | 70 | 72 | ||
| Zmogljivost | Hlajenje | kW | 185.5 | 192 | 197.5 | 204 | |
| ogrevanje | kW | 205 | 209 | 215 | 219 | ||
| Napajanje | Ph/V/Hz | 3/380-400/50/60 | 3/380-400/50/60 | 3/380-400/50/60 | 3/380-400/50/60 | ||
| Nazivna vhodna moč | kW | 52.84 | 54.98 | 56.99 | 59.13 | ||
| Hlajenje | Največja vhodna moč | kW | 93.22 | 100.13 | 105.50 | 112.41 | |
| Nazivni tok | A | 87.26 | 90.79 | 94.12 | 97.65 | ||
| Električni parametri | Največji tok | A | 151.2 | 162 | 170.55 | 181.35 | |
| Nazivna vhodna moč | kW | 53.57 | 54.88 | 57.09 | 58.40 | ||
| Ogrevanje | Največja vhodna moč | kW | 81.53 | 82.43 | 84.96 | 85.86 | |
| Nazivni tok | А | 88.48 | 90.64 | 94.29 | 96.45 | ||
| Največji tok | А | 135.45 | 136.8 | 140.85 | 142.2 | ||
| EER | 3.51 | 3.49 | 3.47 | 3.45 | |||
| COP | 3.83 | 3.81 | 3.77 | 3.75 | |||
| SEER | 5.86 | 5.79 | 5.77 | 5.69 | |||
| SCOP | 4.00 | 3.96 | 3.91 | 3.87 | |||
| Pretok zraka | m³/h | 48600/45000 | 48600/45000 | 48600/45000 | 48600/45000 | ||
| Izvedba | Raven zvočnega tlaka | dB(A) | 67 | 67.5 | 67.5 | 68 | |
| Raven zvočne moči | dB(A) | 86 | 86 | 86 | 86 | ||
| Zunanje mere (Š/D/V) | mm | 1350×720×2048+1350×720× 2048+1350×720×2048 |
1350×720×2048+ (1350×720×2048)*2 |
1350×720×2048+ (1350×720×2048)*2 |
(1350×720×2048)*3 | ||
| Prevozne mere (Š/D/V) | mm | 1450×826×2225+1450× 826×2225+1450×826×2225 |
1450×826×2225+ (1450×826×2225)*2 |
1450×826×2225+ (1450×826×2225)*2 |
(1450×826×2225)*3 | ||
| Neto/poštna teža | kg | 354/400+380/426+380/426 | 354/400+380/426+380/426 | 380/426+380/426+380/426 | 380/426+380/426+380/426 | ||
| Vrsta kompresorja | DC INV. SCROLL | ||||||
| Blagovna znamka kompresorja | MITSUBISHІ ELECTRIC | ||||||
| Količina kompresorja | 2INV+2INV+2INV+2INV | 2INV+2INV*2 | 2INV+2INV*2 | 2INV*3 | |||
| Vrsta hladilnega sredstva | R410A | ||||||
| Polnjenje hladilnega sredstva | kg | 30 | 30 | 30 | 30 | ||
| Cev za hladilno tekočino | mm | 22.22 | 22.22 | 22.22 | 22.22 | ||
| Namestitev | Cev za hladilni plin | mm | 44.5 | 44.5 | 44.5 | 44.5 | |
| Cev za izravnavo olja | mm | 9.52 | 9.52 | 9.52 | 9.52 | ||
| Največja skupna dolžina cevi | m | 1000 | 1000 | 1000 | 1000 | ||
| Največja dolžina cevi (enakovredno/ dejansko) |
m | 190/165 | 190/165 | 190/165 | 190/165 | ||
| Največji padec med I.U.&O.U. (O.U navzgor/navzdol)1 |
m | 90/110 | 90/110 | 90/110 | 90/110 | ||
| Standardni padec med I.U.&O.U2 | m | 50/40 | 50/40 | 50/40 | 50/40 | ||
| Največji padec med I.U3 | m | 30 | 30 | 30 | 30 | ||
| Standardni padec med I.U4 | m | 18 | 18 | 18 | 18 | ||
| Zunanji statični tlak | Pa | 82 | 82 | 82 | 82 | ||
| Razmerje povezave | Priključno razmerje notranje enote | % | 50-160 | 50-160 | 50-160 | 50-160 | |
| Največje število notranjih enot | 64 | 64 | 64 | 64 | |||
| Delovna temperatura. | Hlajenje (DB) | °C | (-5...50) | (-5...50) | (-5...50) | (-5...50) | |
| Ogrevanje(WB) | °C | (-23...21) | (-23...21) | (-23...21) | (-23...21) | ||
1. Preskus moči v skladu s standardom EN14511.
2. Zmogljivosti veljajo za naslednje pogoje:
Hlajenje: notranja temperatura 27 °C DB/ 19 °C WB, zunanja temperatura: 27 °C DB/ 19 °C WB, zunanja temperatura: 27 °C DB/ 19 °C WB. 35 °C DB, 7,5 m dolg priključni cevovod, 0 višinskih razlik.
Ogrevanje: notranja temperatura 20 °C DB, zunanja temp. 7 °C/6 °C WB, dolžina priključnih cevovodov 7,5 m, višinska razlika 0
3. V skladu z našo politiko inovacij se lahko nekatere specifikacije spremenijo brez predhodnega obvestila.
MOV6-8X1EW2AD MOV6-10X1EW2AD MOV6-12X1EW1AD MOV6-14X1EW1AD MOV6-16X1EW1AD


MOV6-18X1EW1AD MOV6-20X1EW1AD MOV6-22X1EW1AD MOV6-24X1EW1AD


Opomba: pri namestitvi zračnega kanala je notranjost zračnega kanala pravokotna: dolžina × širina ≥ 1300 mm × 660 mm